
Op de site van wijchen.nieuws.nl is wekelijks de gemeentepagina te vinden. Hierop staan nieuwsberichten vanuit de gemeente, officiële bekendmakingen en soms een column van de burgemeester of een van de wethouders.
Hier de gemeentepagina van week 19 (8 mei).
VACCINEREN DOET U NIET ALLEEN VOOR UW EIGEN KIND
Sinds 2 maanden ben ik oma van een hele lieve kleindochter, Mira. Ze woont
in Den Haag. Helaas een beetje ver weg, maar ik probeer er regelmatig
heen te gaan. Haar moeder - mijn dochter - is nu nog met verlof, maar
vanaf half juni gaat Mira naar een kinderdagverblijf. En dat is natuurlijk
best spannend de eerste keer. Maar mijn dochter is daarnaast ook ongerust.
Dat komt omdat de vaccinatiegraad in Den Haag ver onder de 95% is gezakt.
De kans dat jonge kinderen ziektes krijgen, zoals de mazelen, is hierdoor
veel groter geworden. En zij kunnen hierdoor ernstig ziek worden en zelfs
overlijden. Wat als Mira straks ziek wordt door een ander kindje dat niet
gevaccineerd is?
Deze zorg hebben niet alleen mijn dochter en ik. Want in heel het land
worden minder kinderen gevaccineerd. Vorige week stond in de krant: het
RIVM start weer met bij elkaar komen. Net als toen voor corona, maar nu
voor de mazelen. Want er zijn nu te veel gevallen van mazelen, waardoor
er de vrees is voor een grote uitbraak.
Mensen, hoe kan dit toch? Waar komt de twijfel over beschermen van
kinderen tegen ernstige ziekten toch vandaan? Juist door kinderen te
vaccineren kwamen ernstige ziekten zoals mazelen, polio en kinkhoest niet
of nauwelijks meer voor. Denken ouders misschien daardoor dat het niet
meer bestaat? Maar helaas blijkt dit voor de mazelen en kinkhoest nu
toch écht anders te zijn!
We weten natuurlijk dat mensen steeds meer vragen stellen en een eigen
mening vormen. En dat is goed. Want over vaccineren is op het internet
veel te lezen. Hierdoor kan het moeilijk zijn alle informatie goed te
wegen waardoor u gaat twijfelen. Dus laat u dan ook goed informeren en stel
uw vragen aan de jeugdarts op het consultatiebureau. Hij geeft u graag
onafhankelijke informatie.
Gelukkig is in gemeente Wijchen bijna 95% van de kinderen gevaccineerd. En
daar ben ik als wethouder heel blij om. Want dan krijgen ziektes hier niet
zo snel een kans om uit te breken. Maar het aantal kinderen dat gevaccineerd
is, daalt ook in onze gemeente. En ik wens, als oma, niet alleen Mira een
veilige omgeving toe. Straks op het kinderdagverblijf of over een paar jaar
op school. Maar ook uw eigen kindje en alle andere kinderen.
Bea Schouten
Wethouder

Tellers gezocht voor Europese verkiezingen
Helpt u mee tellen op een stembureau in onze
gemeente? Wij kunnen uw hulp heel hard
gebruiken. Bij de telling op donderdagavond
6 juni vanaf 21.00 uur en/of bij de
hertelling op vrijdag 7 juni vanaf 10.00 uur.
Wij zijn blij met alle hulp!
Natuurlijk ontvangt u ook een vergoeding.
Deze is € 55,- voor een dagdeel tellen.
Meer informatie?
Kijk op
www.wijchen.mijnverkiezing.nl/ledenportaal/aanmelden .
Hier kunt u zich ook aanmelden.
Nieuwe plek voor de invalidenparkeerplaatsen op het Europaplein
Vanaf vrijdag 10 mei 2024 zijn de eerste 2 parkeerplaatsen op het Europaplein alleen voor automobilisten die in het bezit zijn van een invalideparkeerkaart. Dit zijn de parkeerplaatsen tegenover de schuine ingang van de parkeergarage onder het Europaplein.
De vertrouwde invalideparkeerplaatsen zijn niet meer bereikbaar. Dit komt doordat het oude gemeentekantoor wordt gesloopt. Hierbij worden grote machines gebruikt. Om dit veilig te doen, is het gebied rondom dit oude gebouw afgezet met hekken. De sloop duurt tot medio juni.
Het oude gemeentekantoor maakt plaats voor fase 1, De Burcht, van project Tussen Kasteel en Wijchens Meer (TKWM). Hier komen appartementen, commerciële ruimtes en een grand café.
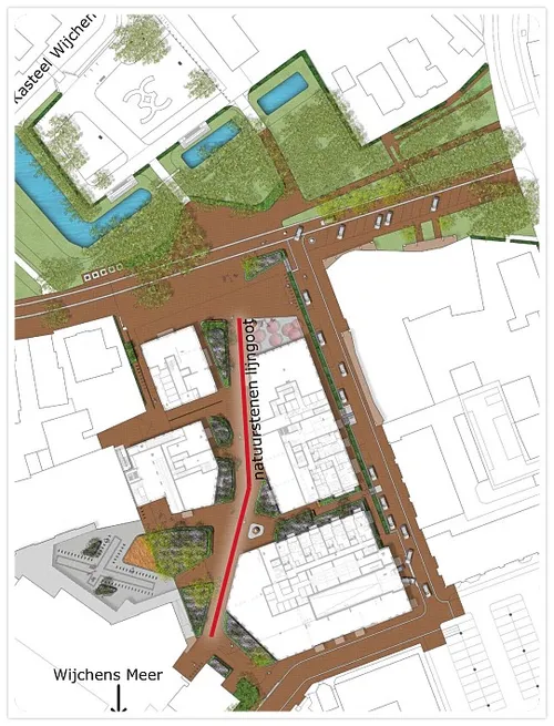
Denk mee over lijngoot de Kleine Elst!
In fase 1, de Burcht, van project Tussen Kasteel en Wijchens Meer speelt water een belangrijke rol. Vroeger liep hier de Kleine Elst.
Een watergeul die toen al de 2 parels van Wijchen, Kasteel Wijchen en het Wijchens Meer, met elkaar verbond. Deze watergeul komt terug in dit project door een lijngoot van natuursteen.
Deze is 200 meter lang en verbindt ook nu het kasteel met het meer. Op de stenen wil de gemeente een tekst graveren over de Kleine Elst. U kunt hierover meedenken!
Weet u een tekst van maximaal 50 woorden die gaat over de vroegere Kleine Elst? Mail deze dan naar [email protected] .
En wie weet leest u, en alle andere bezoekers van het Wijchens centrum, uw tekst terug op de natuurstenen lijngoot.
Wilt u op de hoogte blijven over project Tussen Kasteel en Wijchens Meer? Volg dan Tussen Kasteel en Wijchens Meer op Facebook.
Of meld u aan voor de nieuwsbrief op www.tkwm.nl .
Kwaliteit van grondstoffen gft-afval in 2023
Bedankt voor uw hulp! Ook in 2023 hebben inwoners van de gemeente Wijchen steeds beter etensresten, groente-, fruit- en tuinafval (gft-afval) gescheiden. Dat is mooi, want daardoor kan Dar steeds meer gft-afval recyclen. Gft-afval gebruiken we bijvoorbeeld als grondstof voor compost en groen gas. Bussen in de regio rijden op dit groene gas. En compost kan weer gebruikt worden in de tuin of op het balkon.
Gft-containermissers
Het scheiden van gft-afval gaat op veel plekken in onze gemeente al goed. We zagen dat in 95% van de gft-containers goed gescheiden gft-afval zit! Soms maken inwoners nog foutjes bij het scheiden van gft-afval. Dit noemt Dar gft-containermissers. Zonde! Want niet goed gescheiden gft-afval kunnen we niet gebruiken als grondstof voor nieuwe producten. Probeer daar dan ook extra goed op te letten. De gft-containermissers die we het meeste zien in onze gemeente zijn:
Check welk afval waar hoort in de Dar-app!
Vindt u afval scheiden soms lastig? Of twijfelt u soms wat waar hoort? Check de Dar-app. De afvalwegwijzer in de app vertelt u precies welk afval waar hoort.
Een groener Wijchen, 6 wijken in actie
De wijkacties voor Een groener Wijchen komen eraan! Op woensdagmiddag 15 mei komen we in Woezik, op Bedrijventerrein Zesweg en op Alverna in actie. Een week later, op woensdagmiddag 22 mei, zijn we in Wijchen Zuid, Kerkeveld en Huurlingsedam.
Wat gaan we doen?
We delen aan bewoners van de wijken bijvoorbeeld gratis plantjes, bloemzaad en gieters uit. Natuurlijk geven we ook allerlei informatie over het groener maken van tuin of balkon. Bewoners die tips willen om een stukje van hun tuin, terras of balkon makkelijk groener te maken, roepen we op om een paar foto’s mee te nemen. Groenexperts kijken dan samen met hen naar de mogelijkheden. Ook Talis is aanwezig. Zij geven informatie over wat huurders kunnen doen in hun tuin of op hun balkon. Daarnaast kunnen bewoners die zich hebben aangemeld voor een boompje, of een van de andere mooie producten, hun product komen ophalen.
Waar is het?
Op woensdag 15 mei staan we:
Op woensdag 22 mei staan we:
Weten wanneer we in uw wijk in actie komen?
Kijk op wijchen.nl/eengroenerwijchen .
De volgende publicaties staan op www.officielebekendmakingen.nl . Op deze website leest u ook hoe u eventueel bezwaar of beroep kunt instellen. Via www.overheid.nl kunt u aangeven dat u op de hoogte wil blijven van berichten over uw buurt. En u kunt de app Over uw Buurt downloaden. Heeft u geen internet? Dan kunt u hiervoor bij de bibliotheek in Wijchen terecht. Of kijk op een computer in de hal van het Huis van de gemeente. De stukken kunt u inhoudelijk alleen op afspraak inzien in het Huis van de gemeente.
Milieumeldingen
Neem voor milieupublicaties contact op met de Omgevingsdienst Regio Nijmegen via [email protected] .
Ontvangen meldingen sloopactiviteiten
Ontvangen aanvragen omgevingsvergunningen
Verleende omgevingsvergunningen
Vastgesteld bestemmingsplan
Dit bestemmingsplan is vastgesteld. U kunt een plan bekijken op de website https://omgevingswet.overheid.nl/regels-op-de-kaart/ Zoek de locatie op de kaart, of voer de imro-code in. U kunt ook beroep instellen. De periode waarin u dit kunt doen staat bij het plan.
De beroepstermijn loopt tot en met 19 mei 2024
Imro-code: NL.IMRO.0296.BGBAkkerweg37-DFBP